





























Une famille vivant dans un joli plein pied à la campagne, vue sur les champs.
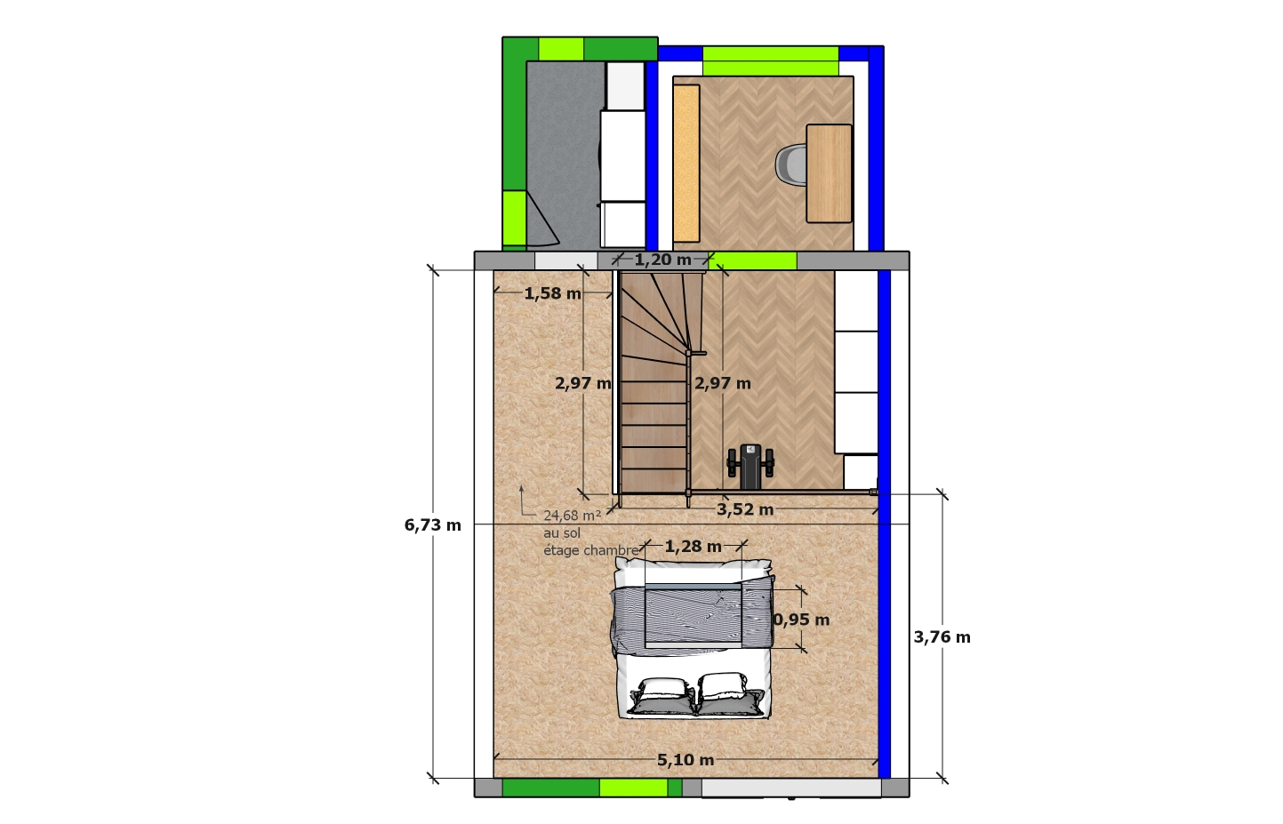
Avec l'arrivée de leur 2e enfant, la petite famille commence à se sentir à l'étroit dans leur maison. Il est donc nécessaire de récupérer quelques mètres carrés pour la vie au quotidien.
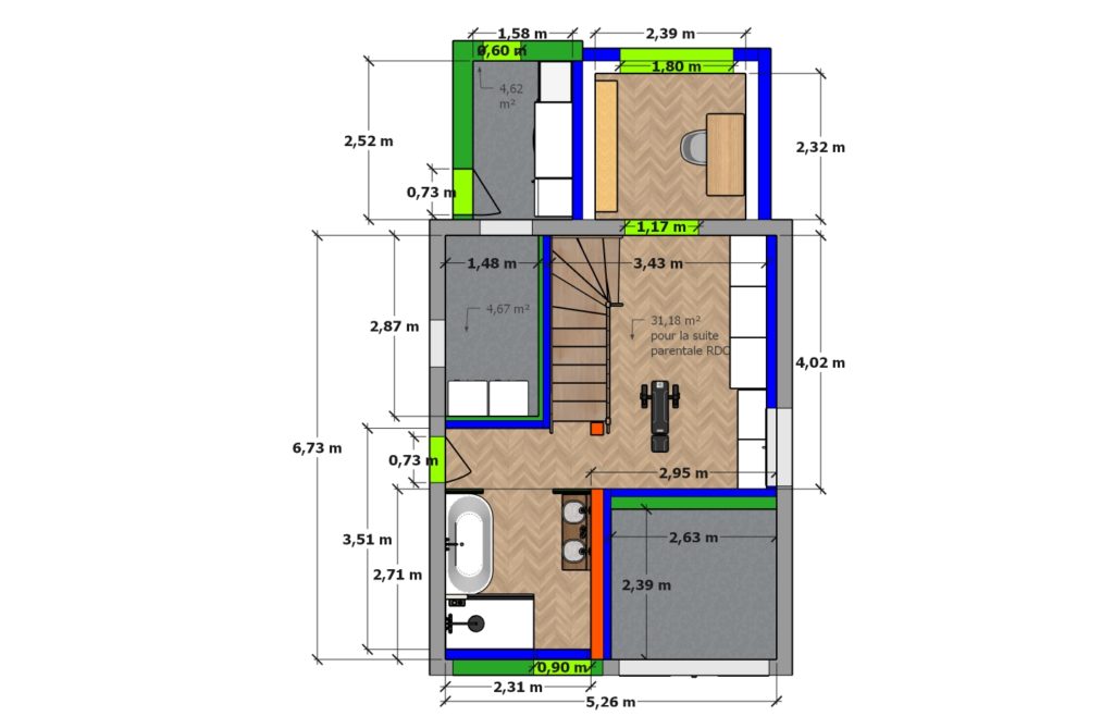
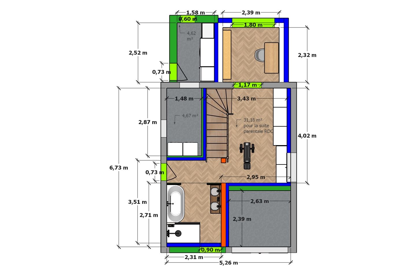
Un double garage pouvant être récupéré dans la surface d'habitation. Bien entendu, les propriétaires souhaitant conserver une partie du garage pour ranger tout le matériel jardin (pas forcément pour y garer leur voiture car existence de places à l'extérieur de la maison). Il a fallu donc réfléchir à relier cet espace à l'habitation principale et aménager tout l'espace en suite parentale. Des mètres carrés optimisés, les membres de la famille au complet satisfaits !
